Luxe & ruimte op toplocatie: volledig gerenoveerde hoekwoning in hartje Breukelen!
Wonen in stijl én comfort? Deze instapklare moderne hoekwoning (woonoppervlakte 130m²) is in 2021 van top tot teen gerenoveerd én uitgebouwd en ligt op steenworp afstand van het gezellige dorpsplein van Breukelen. Met vier slaapkamers, twee badkamers, een royale tuin en parkeren op eigen terrein is dit een droomhuis voor gezinnen, senioren of thuiswerkers die luxe en rust willen combineren met een centrale ligging.
Highlights van deze woning:
– Volledig gemoderniseerd (2021): Nieuwe leidingen, elektra, vloeren, wanden, plafonds en installaties.
– Ruime woonkamer met luxe woonkeuken voorzien van kookeiland en grote aluminium schuifpuien naar de
achtertuin.
– Vier slaapkamers, waarvan één op de begane grond met eigen en-suite badkamer — ideaal als ouderslaapkamer,
gastenverblijf of kantoor.
– Twee moderne badkamers en twee separate toiletten met luxe afwerking.
– Energiezuinig en toekomstbestendig: Energielabel A, kunststof en aluminium kozijnen met HR++ glas, vloerverwarming
op beide verdiepingen, uitstekende isolatie.
– Parkeren met meerdere auto’s op eigen terrein, plus voldoende gratis parkeergelegenheid in de straat.
– Zeer ruime voor- en achtertuin met volop zon en privacy.
Unieke Ligging in Breukelen:
Breukelen, gelegen tussen de iconische steden Amsterdam en Utrecht, biedt de ideale balans tussen het groene, rustige buitenleven en de nabijheid van alle denkbare voorzieningen. De woning ligt op loopafstand afstand van de gezellige dorpskern van Breukelen, waar je terecht kunt voor winkels, restaurants, terrasjes en scholen. Bovendien zijn sportfaciliteiten, een tropisch zwembad en de Loosdrechtse Plassen vlakbij, ideaal voor ontspanning en recreatie.
Met de A2 op een korte afstand ben je in slechts 20 minuten in Amsterdam en binnen 10 minuten in Utrecht. Bussen richting het station en de omliggende steden vertrekken vanaf de Markt, op slechts 3 minuten lopen.
Indeling:
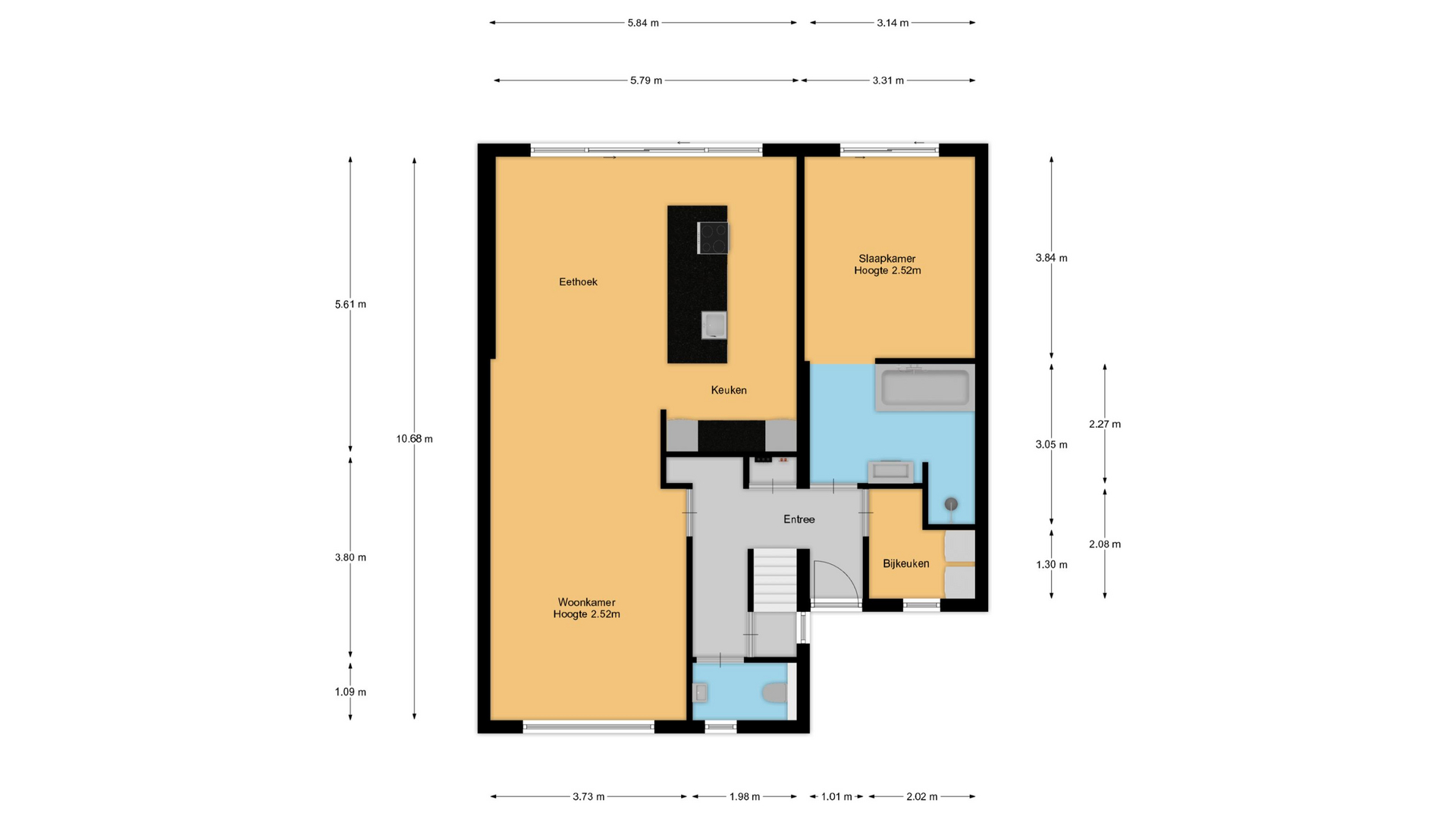
Begane grond:
Ruime hal met kelderkast, garderobe, modern toilet met wastafelmeubel, separate bijkeuken/wasruimte, royale tuingerichte slaapkamer met schuifpui en moderne badkamer-en-suite voorzien van ligbad, inloopdouche, wastafelmeubel en design radiator.
Royale woonkamer met schuifpui naar tuin en open (woon)keuken voorzien van kookeiland met inductiekookplaat met Bora afzuigsysteem en spoelbak en hoge kastenwand met vaatwasser, koelkast met 3-ladenvriezer en combi oven.
Eerste verdieping:
Overloop, separaat tweede toilet, moderne tweede badkamer voorzien van wastafelmeubel en inloopdouche met regen- en handdouche en drie slaapkamers van respectievelijk ca 12m², 11m² en 5 m².
Bergvliering:
Praktisch bergvliering via vlizotrap te bereiken.
Tuin:
Ruime voortuin voorzien van siergrind met parkeerplek voor meerdere auto’s en lage afsluitbare fietsberging.
Strakke onderhoudsarme achtertuin met veel privacy en afsluitbare zij-ingang en extra bergruimte in vrijstaand houten chalet.
Deze woning is écht instapklaar. Luxe, comfort en ruimte op een toplocatie in Breukelen – wie wil dat nou niet? Plan snel een bezichtiging!
| Overdracht | |
|---|---|
| Prijs | € 699.000,- k.k. |
| Status | Beschikbaar |
| Aanvaarding | In overleg |
| Aangeboden sinds | 26 september 2025 |
| Bouw | |
|---|---|
| Type object | Woonhuis |
| Soort | Eengezinswoning |
| Type | Hoekwoning |
| Bouwjaar | 1955 |
| Dak type | Zadeldak |
| Isolatievormen | Dakisolatie, Muurisolatie, Vloerisolatie, Volledig geïsoleerd, HR glas |
| Oppervlaktes en inhoud | |
|---|---|
| Perceel | 256 m2 |
| Woonoppervlakte | 130 m2 |
| Inhoud | 489 m3 |
| Buitenruimtes gebouwgebonden of vrijstaand | 0 m2 |
| Indeling | |
|---|---|
| Aantal kamers | 5 |
| Aantal slaapkamers | 4 |
| Locatie | |
|---|---|
| Ligging | Aan rustige weg, In centrum, In woonwijk |
| Tuin | |
|---|---|
| Type | Achtertuin |
| Staat | Verzorgd |
| Ligging | Noordoost |
| Achterom | Ja |
| Energieverbruik | |
|---|---|
| Energielabel | A |
| Uitrusting | |
|---|---|
| Soorten warm water | CV ketel |
| Parkeer faciliteiten | Op eigen terrein |