Rustig gelegen eengezinswoning op loopafstand van de dorpskern van Kockengen. Een leuke woning met een woonkamer voorzien van openslaande deuren, een open keuken voorzien van diverse inbouwapparatuur, een nette badkamer en vier slaapkamers. De achtertuin is gunstig gelegen voor de zon en is maar liefst 12 meter diep en heeft een achterom. De stenen berging achter in de tuin is zeer ruim. Er is voldoende parkeergelegenheid in de straat.
Wonen in Kockengen
De kern van het dorp Kockengen dateert uit de middeleeuwen. Het is een beschermd dorpsgezicht, waardoor het oorspronkelijke karakter goed bewaard is gebleven. Door bijna elke straat loopt er wel een watergang. In de loop van de laatste dertig jaar zijn er rustige, groene en waterrijke nieuwbouwwijken aan het dorp toegevoegd. Het dorp ligt tussen de weilanden en aan de zuidkant ligt een stiltegebied met talrijke vogelsoorten.
Kockengen heeft een bloeiend sociaal, sport- en verenigingsleven. De talrijke clubs van voetbal en tennis tot amateurtoneel en klaverjassen bieden gemakkelijke mogelijkheden tot inburgering. Ook voor het dagelijkse bestaan heeft het dorp voldoende voorzieningen. Kockengen valt onder de gemeente Stichtse Vecht.
Ligging en bereikbaarheid
Vanuit Kockengen is de A2 gemakkelijk bereikbaar. Van daar af liggen zowel Amsterdam als Utrecht dichtbij. Het station van Breukelen – ‘park-and-ride’ – is even gemakkelijk bereikbaar, ook per fiets.
Indeling
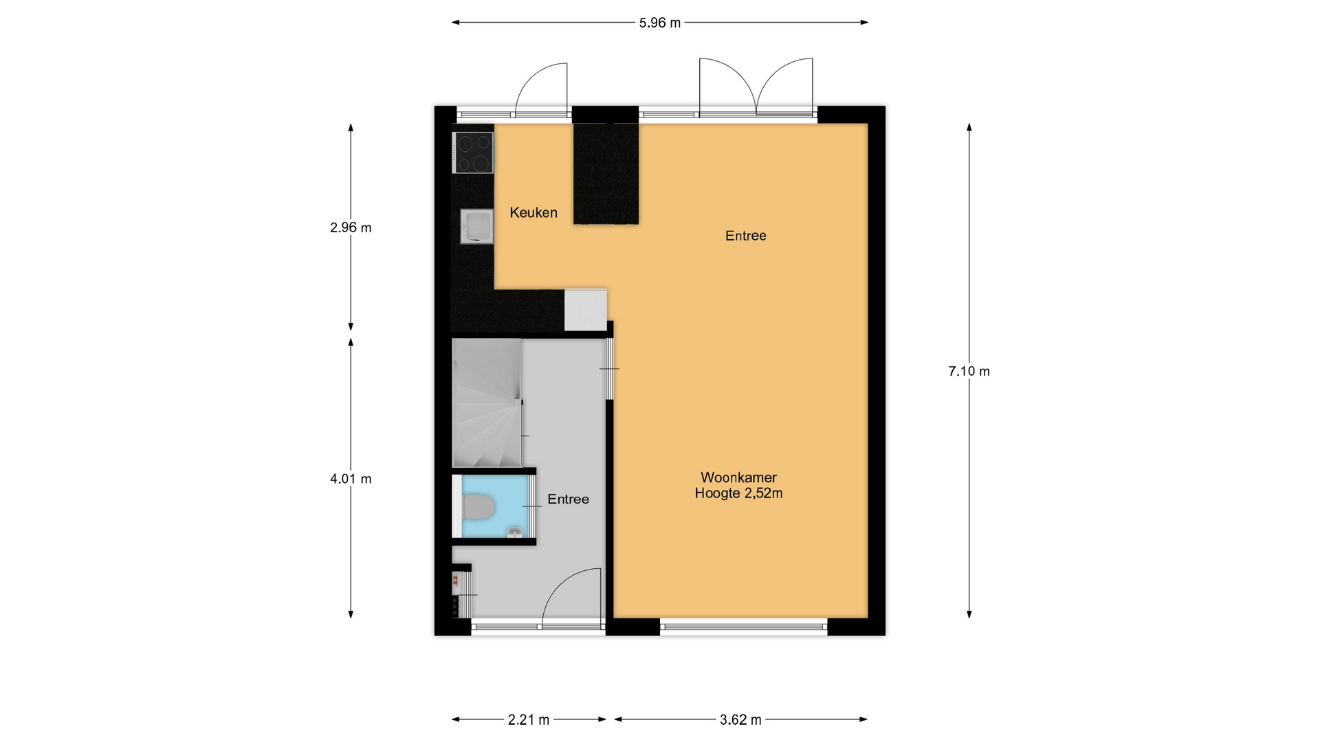
Begane grond:
Entree, hal, meterkast (vernieuwd) en toilet met fonteintje.
Lichte woonkamer voorzien van laminaatvloer en open keuken met diverse inbouwapparatuur waaronder een koelkast, oven, inductie kookplaat (2024) met afzuigkap, vaatwasser (2024) en magnetron.
Eerste verdieping:
Overloop, nette badkamer voorzien van inloopdouche, toilet, wastafelmeubel, handdoekenradiator en afzuiging.
Er zijn drie slaapkamers variërend van circa 14,5 m², 11 m² en 6,6 m². De slaapkamer aan de achterzijde heeft een vaste kastenwand.
Zolder:
Ruime zolder met cv-opstelling en wasmachine aansluiting. Ruime zolderkamer van ca 11 m² met dakvenster. Deze ruimte is zeer geschikt voor een dakkapel
Tuin:
De 12 meter diepe achtertuin is gelegen op het zuidoosten en biedt volop zon. De stenen berging achterin in de tuin is voorzien van elektra en is met een afmeting van 4,61 x 2,32 meter zeer ruim te noemen. Tevens is er een houten tuinkast voor extra opslag. De volledig omheinde tuin met schuttingen biedt maximale privacy, terwijl de handige achterom zorgt voor gemakkelijke toegang.
Bijzonderheden:
– eerste verdieping kunststof kozijnen met HR++ glas (2024);
– vaatwasser en inductiekookplaat (2024);
– 11 zonnepanelen (2018);
– achterpui met openslaande deuren in 2020 vernieuwd;
– handbediend zonnescherm voor extra schaduw.
| Overdracht | |
|---|---|
| Prijs | € 449.000,- k.k. |
| Status | Beschikbaar |
| Aanvaarding | In overleg |
| Aangeboden sinds | 20 november 2025 |
| Bouw | |
|---|---|
| Type object | Woonhuis |
| Soort | Eengezinswoning |
| Type | Tussenwoning |
| Bouwjaar | 1972 |
| Dak type | Zadeldak |
| Isolatievormen | Dakisolatie, Dubbelglas |
| Oppervlaktes en inhoud | |
|---|---|
| Perceel | 149 m2 |
| Woonoppervlakte | 103 m2 |
| Inhoud | 352 m3 |
| Buitenruimtes gebouwgebonden of vrijstaand | 0 m2 |
| Indeling | |
|---|---|
| Aantal kamers | 5 |
| Aantal slaapkamers | 4 |
| Locatie | |
|---|---|
| Ligging | Aan rustige weg, In woonwijk |
| Tuin | |
|---|---|
| Type | Achtertuin |
| Staat | Normaal |
| Ligging | Zuidoost |
| Achterom | Ja |
| Energieverbruik | |
|---|---|
| Energielabel | A |
| Uitrusting | |
|---|---|
| Soorten warm water | CV ketel |
| Parkeer faciliteiten | Openbaar parkeren |