Skip to main content
3621 KB Breukelen

Titus Brandsmastraat 75

€ 310.000,- k.k.
Bezichtiging aanvragen

Op de kaart

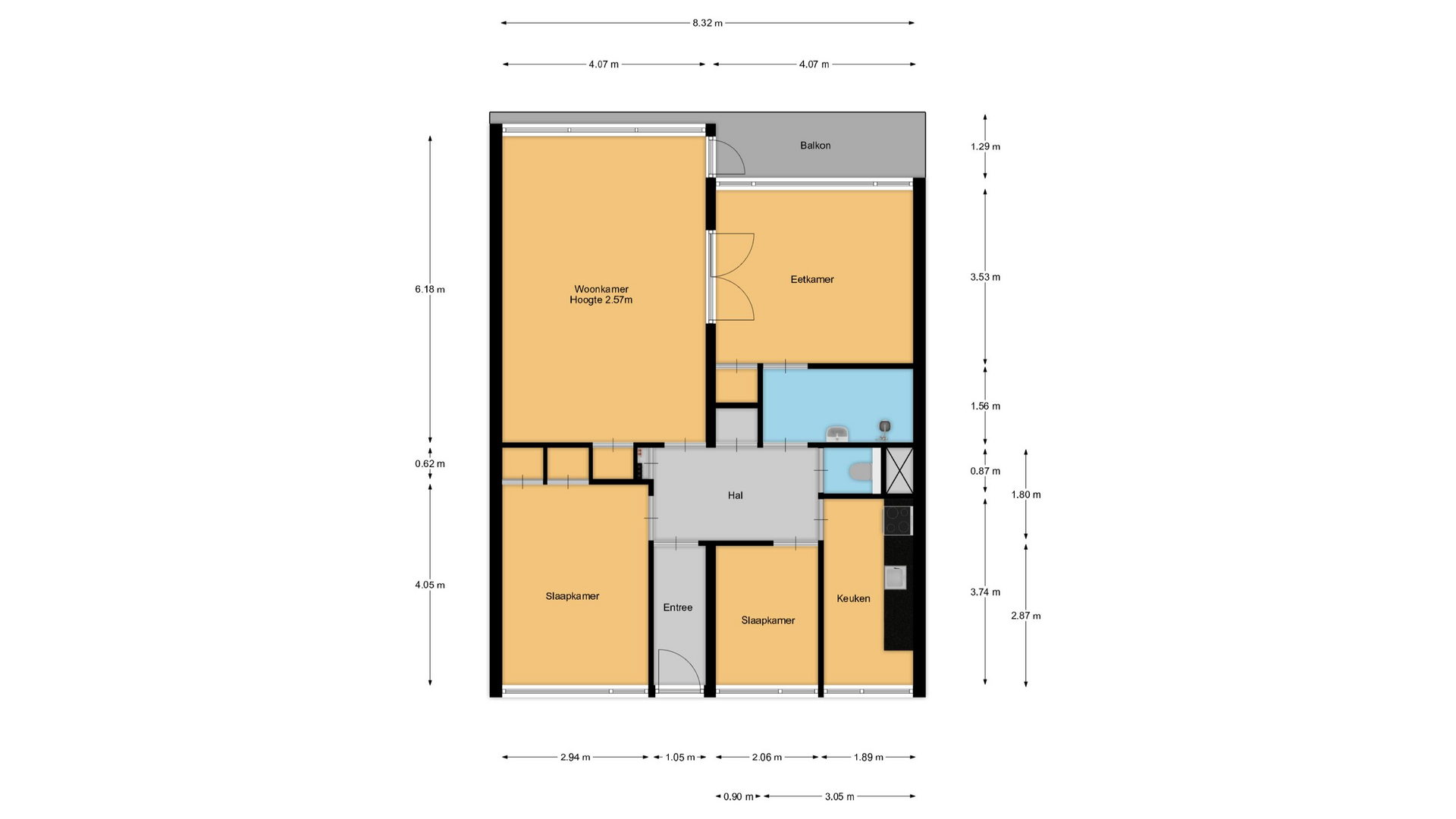
Plattegronden