*** FOR ENGLISH SEE BELOW ***
In de gewilde wijk ‘Meerwijk West’ ligt op een prachtige vrije locatie tegenover het Zijdelmeer deze moderne tussenwoning (1989) met erker en uitgebouwde keuken en beschutte tuin met overkapping. Energielabel B, kunststof kozijnen.
De woning is instapklaar en de rust en vrijheid van deze plek is uniek. Woonoppervlakte ca. 113 m². Vrij parkeren voor de deur, ook oplaadmogelijkheid voor elektrische auto.
Indeling:
Aan de voorzijde van de woning is een heerlijke en mooi ingerichte voortuin. Vandaar is er zicht op een openbare groenstrook – met voldoende parkeerruimte – en het achtergelegen mooie Zijdelmeer.
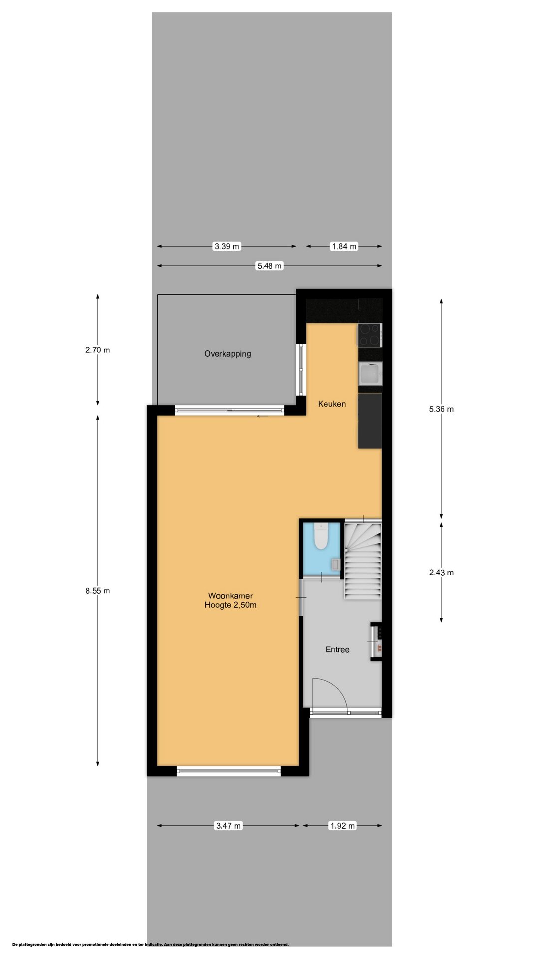
Via de entree kom je in de hal met trapopgang naar de verdieping. Er is een toiletruimte met fontein en de meterkast (Glasvezel aanwezig).
De woonkamer is ruim te noemen, ook door de speelse erker aan de voorzijde. De begane grond heeft een massief houten oplegvloer.
Aan de achterzijde van de woonkamer is een schuifpui naar de tuin. Er is een praktische trapkast aanwezig. De moderne keuken is deels uitgebouwd in de tuin.
Via de schuifpui kom je in de tuin met tegen de achtergevel een glazen overkapping met elektrische screen. Ter plekke van de overkapping is er een vlondervloer. Het overige gedeelte van de tuin is bestraat en deel voorzien van borders met beplanting.
Achter in de tuin is de praktische stenen berging met elektra. Er is een achterom.
1e verdieping:
De overloop ontsluit 3 goede slaapkamers. De kamer aan de voorzijde grenst aan een balkon (op de erker) vanwaar je een prachtige zichtlijn hebt naar het Zijdelmeer en de groenstrook.
De moderne badkamer is voorzien van een douchehoek ,een 2e toilet en een wastafelmeubel. De wanden zijn geheel betegeld met een groot formaat wandtegel in lichte kleurstelling. Er is een fraaie designradiator.
Met uitzondering van de badkamer (tegelvloer) is deze verdieping voorzien van een linoleumvloer.
2e verdieping:
De ruime overloop heeft daglicht via een dakraam aan de voorzijde, de opstelplaats voor de wasapparatuur en de CV Ketel (2018). Er is achter een schot extra bergruimte gecreëerd.
De ruime zolderkamer heeft een grote kunststof dakkapel aan de voorzijde. Goed te gebruiken als slaapkamer of werkkamer. Er is extra bergruimte achter de knieschotten.
Deze verdieping heeft een laminaatvloer.
Bijzonderheden:
* moderne tussenwoning op perfecte en rustige locatie;
* voorzieningen (scholen, winkels, sport e.d.) op kortere afstand, uitvalswegen nabij;
* vrij parkeren voor de deur;
* elektrische laadpaal voor de deur op de openbare weg;
* Energielabel B;
* glazen overkapping met elektrische screen aan achterzijde woning;
* geen koelkast in de keuken thans, los te plaatsen;
* kookplaat 2015, oven 2020;
* screen ouderslaapkamer werkt niet;
* indicatie oplevering: in overleg, kan op korte termijn.
——————————————————————-
In the sought-after residential area of Meerwijk West, in Uithoorn, this modern mid-terrace house (1989) is situated in a beautiful open location directly opposite the Zijdelmeer. The property features a bay window, an extended kitchen, and a sheltered garden with a glass canopy. Energy label B and low-maintenance uPVC window frames.
The house is move-in ready, and the peace and privacy of this location are truly unique. Living area approx. 113 m². Free parking directly in front of the house, including a public charging station for electric vehicles.
Layout:
At the front of the house is a lovely landscaped front garden with views of a public green area — offering ample parking — and the beautiful Zijdelmeer beyond.
Through the entrance, you step into the hallway with staircase to the first floor. There is a toilet with washbasin and the meter cupboard (fiber optic connection available).
The living room is spacious, enhanced by the attractive bay window at the front. The ground floor features solid wood flooring. At the rear, sliding doors open onto the garden. There is also a practical storage cupboard under the stairs. The modern kitchen has been partially extended into the garden.
Through the sliding doors, you access the garden, which has a glass canopy with electric screen attached to the rear façade. Beneath the canopy is a wooden deck. The remaining part of the garden is paved and partly fitted with planted borders.
At the back of the garden is a practical stone storage shed with electricity. There is rear access via a back entrance.
First Floor:
The landing provides access to three well-sized bedrooms. The front bedroom adjoins a balcony (above the bay window), offering beautiful views towards the Zijdelmeer and the green area.
The modern bathroom includes a shower enclosure, second toilet, and vanity unit. The walls are fully tiled with large-format light-colored tiles. There is a stylish designer radiator.
With the exception of the bathroom (tiled floor), this floor is finished with linoleum flooring.
Second Floor:
The spacious landing benefits from natural light through a front-facing roof window. Here you will find the connections for washing equipment and the central heating boiler (2018). Additional storage space has been created behind a partition wall.
The large attic room features a large uPVC dormer window at the front and can be used as a bedroom or home office. There is additional storage space behind the knee walls.
This floor is finished with laminate flooring.
Special Features:
* Modern mid-terrace house in a perfect and quiet location
* Amenities (schools, shops, sports facilities, etc.) within short distance; convenient access to main roads
* Free parking in front of the house
* Public electric vehicle charging station in front
* Energy label B
* Glass canopy with electric screen at the rear
* No built-in refrigerator currently in the kitchen (freestanding possible)
* Hob (2015), oven (2020)
* Screen in master bedroom not functioning
* Indication of completion: by mutual agreement, short-term possible
| Overdracht | |
|---|---|
| Prijs | € 575.000,- k.k. |
| Status | Beschikbaar |
| Aanvaarding | In overleg |
| Aangeboden sinds | 18 februari 2026 |
| Bouw | |
|---|---|
| Type object | Woonhuis |
| Soort | Eengezinswoning |
| Type | Tussenwoning |
| Bouwjaar | 1989 |
| Dak type | Zadeldak |
| Isolatievormen | Dakisolatie, Muurisolatie, Vloerisolatie, Dubbelglas, HR glas |
| Oppervlaktes en inhoud | |
|---|---|
| Perceel | 145 m2 |
| Woonoppervlakte | 113 m2 |
| Inhoud | 379 m3 |
| Buitenruimtes gebouwgebonden of vrijstaand | 9 m2 |
| Tuinoppervlakte | 70 m2 |
| Indeling | |
|---|---|
| Aantal kamers | 5 |
| Aantal slaapkamers | 4 |
| Locatie | |
|---|---|
| Ligging | Aan rustige weg, In woonwijk, Vrij uitzicht |
| Tuin | |
|---|---|
| Type | Achtertuin |
| Staat | Normaal |
| Ligging | Zuid |
| Achterom | Ja |
| Energieverbruik | |
|---|---|
| Energielabel | B |
| Uitrusting | |
|---|---|
| Soorten warm water | CV ketel |
| Parkeer faciliteiten | Openbaar parkeren |