Omschrijving
Karakteristiek voorhuis van boerderij (oorspronkelijke bouwjaar 1926) met voor- en beschutte zijtuin met overkapping. Mooie zichtlijn naar de polder. Parkeren op eigen terrein.
De woning heeft 4 slaapkamers en is rustig gelegen aan een doodlopende landweg tussen Mijdrecht en Amstelhoek. Het achterhuis is ook particulier bewoond en heeft een paardenbak. Omliggend zijn een tweetal bedrijven gevestigd.
Het perceel (woonhuis en tuin en weg) is ca. 850 m² groot en betreft een gedeeltelijk kadastraal perceel zoals schetsmatig weergegeven op de kadastrale kaart in Move.
Een buitenkans als je karakteristiek wil wonen voor een betaalbaar budget !
Maak een vrijblijvende afspraak voor een bezichtiging, we leiden u graag rond.
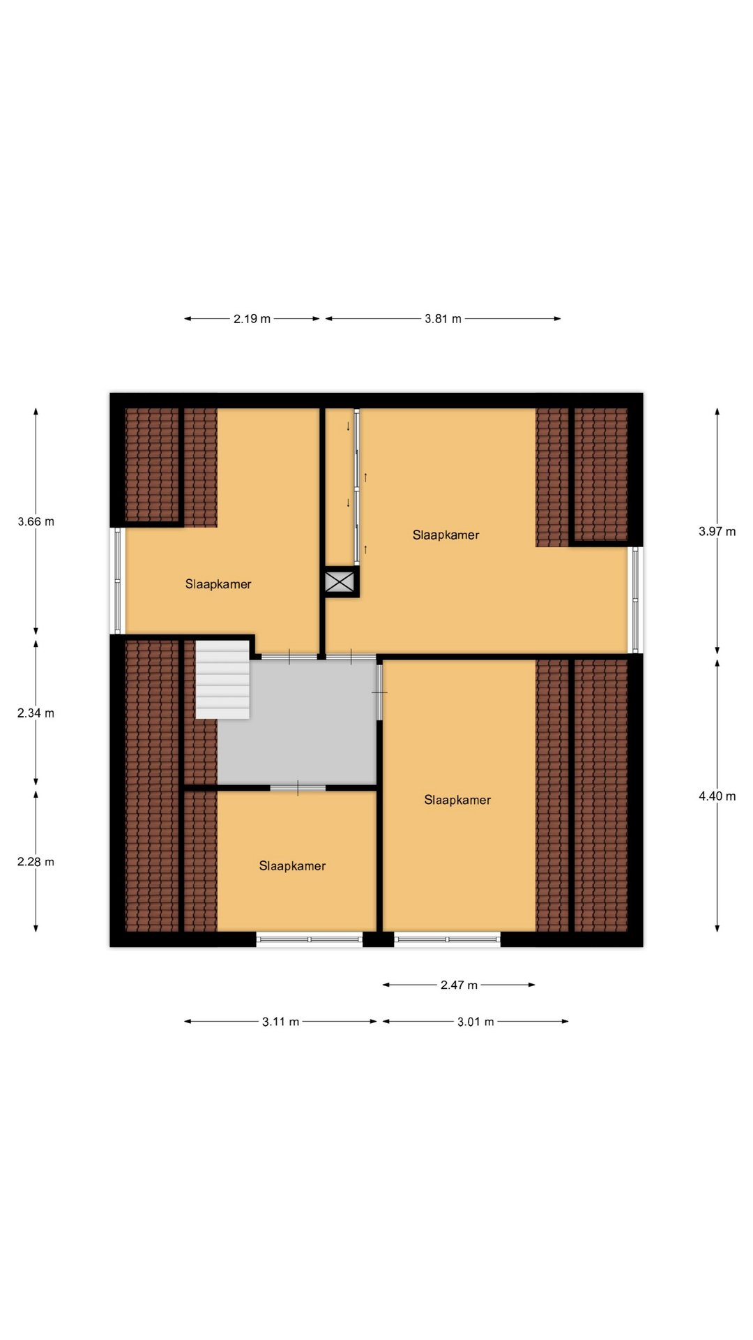
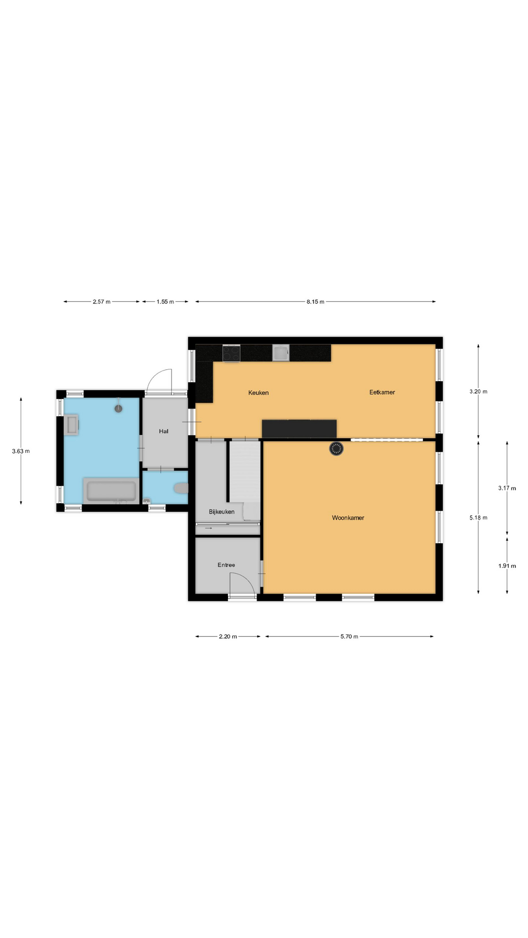
Voor de specifieke indeling van de woning verwijzen wij u naar de gedetailleerde plattegronden.
De highlights:
* een voor- en zij-entree met beide een hal;
* ruime woonkamer met mooi uitzicht naar buiten;
* woonkeuken (2005) met eetgedeelte;
* complete badkamer op de begane grond, separaat toilet;
* gedeeltelijk vloerverwarming (keuken/badkamer/bijkeuken):
* praktische bijkeuken voor opslag en proviand;
* 1e verdieping: overloop met hal, 4 slaapkamers.
* heerlijke beschutte zijtuin met deels bestrating en plantenborders;
* overkapping/veranda in de achtertuin;
* 12 zonnepanelen;
* airco beneden- en bovenverdieping;
* elektrische laadpaal voor auto aanwezig.
Bijzonderheden :
* Projectnotaris Lim Notariaat in Uithoorn in verband met splitsing perceel;
* grootte perceel is indicatief ca. 850 m² en dient nog kadastraal te worden uitgemeten;
* parkeren op eigen terrein;
* energielabel C;
* aanbouw/badkamer 1998 (onderheid);
* gezien het oorspronkelijke bouwjaar wordt in de koopakte een ouderdoms- en asbestclausule opgenomen, alsmede een clausule dat koper bekend is met de specifieke ligging van het object;
* oplevering in overleg.