Omschrijving
Bezichtigingen aanvragen uitsluitend via Funda
Deze lichte en goed onderhouden eengezinswoning is een ideale starterswoning met een extra diepe, zonnige tuin en een ligging in een gezellige, kindvriendelijke woonwijk nabij het centrum van De Kwakel (gemeente Uithoorn).
Indeling
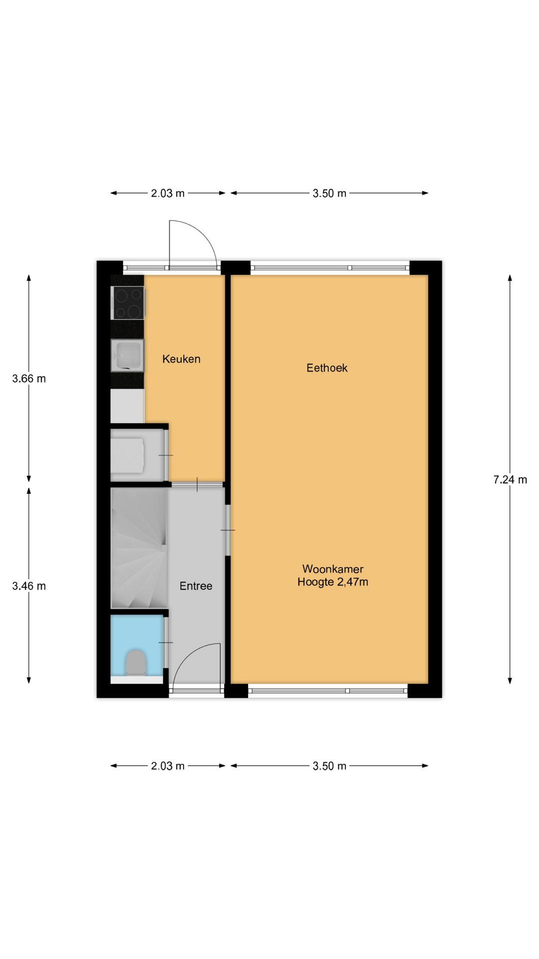
Begane grond
Via de entreehal met trapopgang, kelderkast en een recent gemoderniseerde toiletruimte kom je in de doorzonwoonkamer: een verrassend diepe en lichte leefruimte met prettig zicht op de tuin. De ruime, recent vernieuwde keuken ligt aan de tuinzijde en biedt directe toegang naar buiten. In de keuken is een aparte ruimte gecreëerd waarin wasmachine en wasdroger netjes zijn weggewerkt. De diepe achtertuin beschikt over een houten berging/schuur.
Eerste verdieping
Vanaf de overloop zijn drie lichte slaapkamers bereikbaar, elk met een vaste inbouwkast. Eén van de kamers aan de achterzijde is opvallend ruim. Aan de voorzijde ligt de recent gemoderniseerde badkamer met inloopdouche en wastafel.
Tweede verdieping
Een vaste trap leidt naar de zolderverdieping met een ruime overloop waar de cv-ketel is opgesteld (bouwjaar 2021). Aansluitend bevindt zich een royale zolderkamer met dakvenster en toegang tot bergruimte. Wie extra daglicht wil, kan hier desgewenst een groter dakraam plaatsen, ook is het mogelijk een dakappel of dak-opbouw te plaatsen.
Tuin
De achtertuin ligt op het zuidwesten en heeft daardoor een heerlijk zonnige ligging. De tuin is extra diep doordat er in het verleden een fors stuk grond is bijgekocht; hierdoor zijn er veel mogelijkheden voor meerdere terrassen, spelen en groen. Achter de tuin loopt een voetpad en is een praktische achterom aanwezig. Aan de voorzijde ligt bovendien een fijne voortuin.
Omgeving
De woning ligt in een rustige, gezellige en kindvriendelijke woonwijk van De Kwakel, onderdeel van de gemeente Uithoorn. Het dorpscentrum met diverse voorzieningen ligt nabij. Op loopafstand vind je de basisschool, kinderopvang, sportvoorzieningen en verschillende winkels. In de directe omgeving zijn meerdere speelgelegenheden te vinden. De grotere winkelcentra en overige voorzieningen van Uithoorn zijn eenvoudig per fiets bereikbaar. Parkeren kan in de straat.
Bijzonderheden
• Woonoppervlakte circa 82 m² volgens NEN 2580. Extra circa 11 m² op zolder (gemeten boven 1,50 m) valt buiten het officiële woonoppervlak omdat minder dan 4 m² boven 2,00 m hoogte ligt; feitelijk goed bruikbare zolderkamer en overloop en 93m² beschikbaar.
• Energielabel C. Er is een NVM verduurzamingsscan uitgevoerd. Er is daarbij een scenario doorgerekend waarbij met een investering van circa €6.000,- energielabel A kan worden gehaald.
• o.a. dakisolatie en grotendeels dubbel glas.
• Cv-ketel uit 2021.
• De slaapkamers op de eerste verdieping en de hal zijn recent gestucadoord.