Uniek gelegen halfvrijstaand woonhuis met garage – in hartje Kockengen, tussen Utrecht en Amsterdam
Laat je verrassen door deze karakteristieke en uitstekend onderhouden halfvrijstaande woning, gelegen in het idyllische dorp Kockengen. Midden in de historische dorpskern én aan het rustgevende riviertje ’t Heicop, met mogelijkheid tot aanmeren van een eigen bootje voor de deur – varen naar de Vecht of Vinkeveense Plassen kan al binnen een uur!
Deze woning combineert comfort, karakter en duurzaamheid (energielabel A+) op een zeldzaam mooie locatie met optimale privacy.
Toplocatie tussen Utrecht en Amsterdam!
Kockengen is centraal gelegen en heeft een goede bereikbaarheid ten opzichte van de steden Amsterdam (20 autominuten) en Utrecht (ca. 20 autominuten). Winkels, scholen en diverse andere voorzieningen bevinden zich op loopafstand van de woning. Het gezellige toeristische Breukelen ligt op circa 5 km afstand en heeft een treinstation (4 x per uur naar Amsterdam en Utrecht).
Ook Amersfoort, Rotterdam, Den Bosch, Leiden en Den Haag zijn binnen 50 autominuten te bereiken.
Voorzieningen:
Dit pittoreske dorp biedt naast basisonderwijs, ook veel sportfaciliteiten (zoals water-, racket-, wieler- en veldsporten) in en rondom het zwem- en recreatiepark de Koet. Voor voortgezet onderwijs zijn er tal van mogelijkheden in het nabijgelegen Breukelen, Maarssen, Woerden en Utrecht. Ook winkels en supermarkt(en) zijn in Kockengen en in de nabije omgeving te vinden.
Een korte rondleiding:
Begane grond
Entree via een ruime hal met toilet, garderobe en trapopgang.
De royale U-vormige woonkamer met zij-erker en openslaande deuren naar de zonnige tuin is strak afgewerkt en voorzien van grote plavuizen met vloerverwarming.
Aan de voorzijde ligt de luxe open keuken met prachtig uitzicht op het water. De keuken is voorzien van complete inbouwapparatuur waaronder een 5-pitskookplaat, RVS afzuigkap, combimagnetron, koelkast en Quooker. Vanuit de keuken is er een directe doorgang naar de garage.
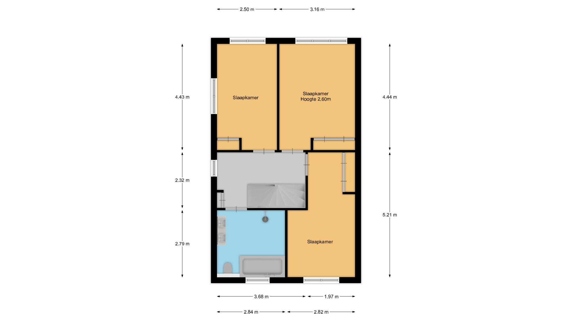
Eerste verdieping
Overloop met toegang tot drie ruime slaapkamers van respectievelijk ca 15m², 14² en 11m², allen voorzien van vaste kastruimte en laminaat vloer.
De luxe badkamer beschikt over een ligbad, inloopdouche, tweede toilet, wastafelmeubel, designradiator en vloerverwarming.
Zolder
Een verrassend royale ruimte met hoge nok, veel lichtinval door grote dakvensters en volop mogelijkheden. Hier bevinden zich de CV- en WTW-installatie en aansluiting voor wasmachine en droger. Ideaal voor het creëren van twee extra slaapkamers en/of een aparte wasruimte – zie de digitale animatie in de fotopresentatie.
Garage (eventueel slaapkamer met badkamer)
Volledig afgewerkte en verwarmde garage met openslaande deuren naar de oprit en toegang tot de tuin. Voorzien van praktische kastenwand. Eenvoudig om te bouwen tot gelijkvloerse slaapkamer met badkamer – perfect voor levensloopbestendig wonen.
Tuin
De fraai aangelegde voor-, zij- en achtertuin biedt een oase van rust. Geniet van het royale zonneterras en bloeiende borders. De achtertuin is gunstig gelegen op het zuidwesten en biedt volop privacy. Parkeren met één auto op eigen terrein of voor de deur langs de kade van ’t Heicop.
Bijzonderheden
– Energiezuinige woning met energielabel A+ (12 zonnepanelen 400Wp);
– Aan vaarwater gelegen – bootje aanmeren is toegestaan;
– Ruime zolder met potentie voor twee extra slaapkamers;
– Levensloopbestendig wonen mogelijk door verbouwbare garage;
– Op loopafstand van voorzieningen en natuur;
– Centrale ligging nabij uitvalswegen en openbaar vervoer.
Wonen in deze charmante woning is elke dag genieten van rust, ruimte én bereikbaarheid. Een unieke kans in de populaire Vechtstreek!
| Overdracht | |
|---|---|
| Prijs | € 875.000,- k.k. |
| Status | Beschikbaar |
| Aanvaarding | In overleg |
| Aangeboden sinds | 11 december 2025 |
| Bouw | |
|---|---|
| Type object | Woonhuis |
| Soort | Landhuis |
| Type | Halfvrijstaande woning |
| Bouwjaar | 2008 |
| Dak type | Zadeldak |
| Isolatievormen | Dakisolatie, Muurisolatie, Vloerisolatie, Dubbelglas |
| Oppervlaktes en inhoud | |
|---|---|
| Perceel | 243 m2 |
| Woonoppervlakte | 164 m2 |
| Inhoud | 593 m3 |
| Buitenruimtes gebouwgebonden of vrijstaand | 0 m2 |
| Indeling | |
|---|---|
| Aantal kamers | 5 |
| Aantal slaapkamers | 4 |
| Locatie | |
|---|---|
| Ligging | Aan water, Aan rustige weg, In woonwijk, Aan vaarwater |
| Tuin | |
|---|---|
| Type | Achtertuin |
| Staat | Verzorgd |
| Ligging | Zuidwest |
| Achterom | Ja |
| Energieverbruik | |
|---|---|
| Energielabel | A+ |
| Uitrusting | |
|---|---|
| Soorten warm water | CV ketel |
| Parkeer faciliteiten | Op eigen terrein |