DEELNEMER OPEN HUIS zaterdag 28-3 a.s. 11.00 – 15.00 uur! Uiteraard kunt u ook voor 28-3 al een bezichtigingsafspraak maken.
Wonen/recreëren op een droomlocatie: Modern instapklaar top appartement aan de schilderachtige Loosdrechtse Plassen
Droomt u van wonen of recreëren op een idyllische plek aan het water? Dan is dit moderne en instapklare appartement aan de Loosdrechtse Plassen precies wat u zoekt. Hier combineert u rust, ruimte en natuur met comfort en bereikbaarheid.
Dit fraaie, volledig gelijkvloerse appartement ligt op een rustige en privé gelegen plek in het complex. Hoewel het gebouw is voorzien van een lift, bereikt u de woning via een korte trap – wat juist bijdraagt aan optimale privacy.
Licht, ruimte en uitzicht
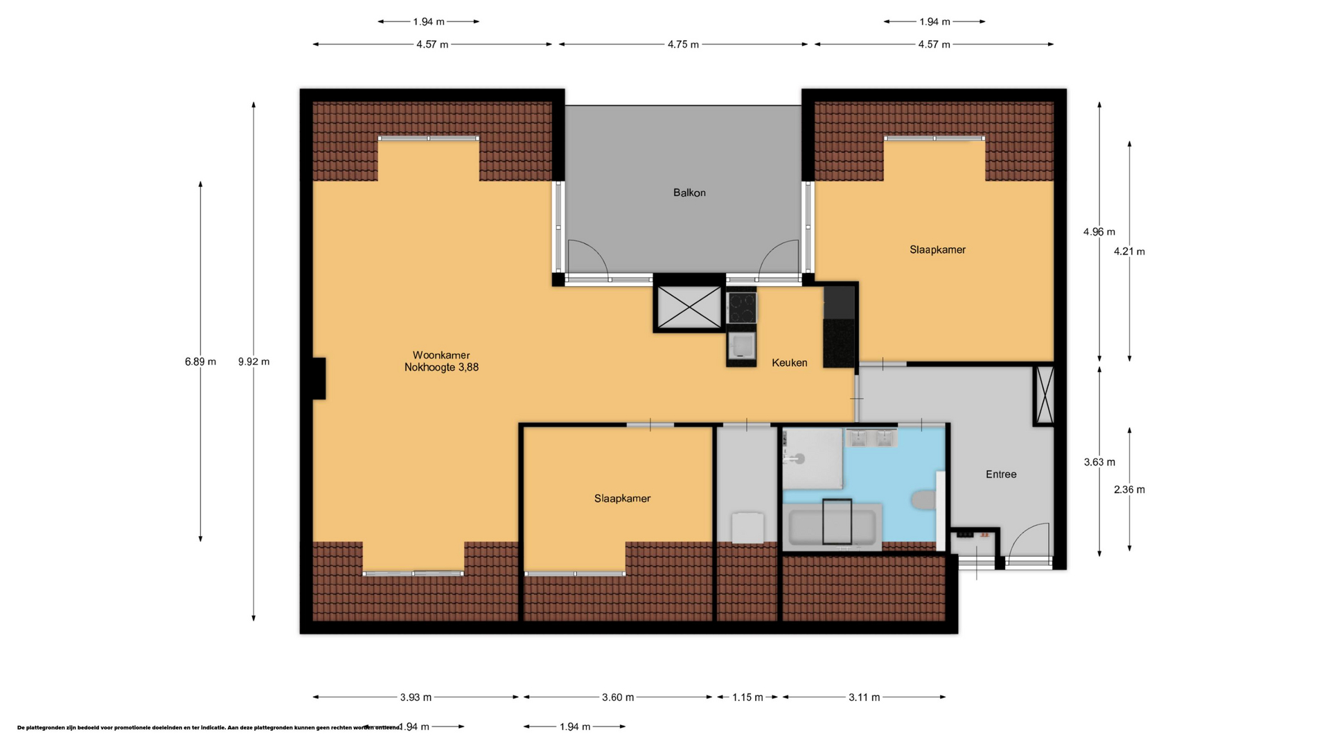
De royale woonkamer met hoge nok en aan weerszijden dakkapellen, vormt het stralende middelpunt van de woning. Hier geniet u van een overvloed aan natuurlijk licht en een weids uitzicht over de schitterende omgeving. Uw eigen balkon op het zuiden biedt een adembenemend uitzicht over water en weiland, perfect om te ontspannen en te genieten van zonnige dagen.
Comfortabel en modern afgewerkt
De woning beschikt over twee ruime slaapkamers (4,57 x 4,12m en 3,65 x 2,36m), beide voorzien van een dakkapel. De open keuken is in 2021 voorzien van een volledig nieuwe keukeninrichting met moderne inbouwapparatuur, waaronder een vaatwasser, keramische kookplaat met afzuigkap, oven en een Amerikaanse koelkast. Vanuit de keuken heeft u direct toegang tot het balkon.
Ook de badkamer (2021) is stijlvol en compleet ingericht met een ligbad, inloopdouche, dubbel wastafelmeubel, zwevend toilet en wandmeubel met lades. Dankzij het dakvenster is er prettig daglicht aanwezig. Daarnaast beschikt het appartement over een inpandige berging met wasmachineaansluiting.
Privé berging en gemeenschappelijke fietsenstalling
In de onderbouw vindt u een privéberging (ca 4m²) en een gezamenlijke fietsenberging, ideaal voor het opbergen van uw sportieve uitrusting.
Parkeren op eigen terrein
Parkeren is eenvoudig: u heeft recht op een eigen (te huren) parkeerplaats. Tevens bestaat de mogelijkheid om een ligplaats voor uw boot te huren – ideaal voor liefhebbers van het water.
Perfecte ligging
Het complex ligt aan de Scheendijk en grenst aan de achterzijde aan de trekgaten van de Loosdrechtse plassen.
Het appartement ligt op slechts vijf minuten rijden van het pittoreske dorpje Breukelen. Breukelen biedt u alles op het gebied van winkels, restaurants en cafés, openbaar vervoer, scholen, sportcentra, zwembad, etc. Ook de Scheendijk zelf heeft veel te bieden. Zoals een restaurant, café, snackbar, boten verhuur, diverse water- en sportzaken, buitenzwembad, etc. De natuurliefhebber kan in deze omgeving geheel aan zijn trekken komen. Prachtige bossen afgewisseld met landerijen, de rivier de Vecht, polderlandschappen, de Loosdrechtse plassen etc.
Bijzonderheden:
– Energielabel C
– Servicekosten per 1-1-2026: € 275,88 per maand
– Elektrische boiler is eigendom
– Appartementseigenaren hebben recht op één (huur)parkeerplaats achter de slagboom;
– Informatie over huren van een parkeerplaats en/of ligplaats te verkrijgen bij het havenbureau;
– Het appartement heeft een recreatieve bestemming: permanente bewoning wordt gedoogd, inschrijving bij Gemeente is mogelijk.
Wacht niet langer en grijp deze unieke kans om te wonen op een van de mooiste locaties van Nederland. Dit appartement biedt u de perfecte combinatie van luxe, ruimte, rust en natuur, met alle voorzieningen binnen handbereik. Neem vandaag nog contact met ons op voor een bezichtiging!
| Overdracht | |
|---|---|
| Prijs | € 435.000,- k.k. |
| Status | Beschikbaar |
| Aanvaarding | In overleg |
| Aangeboden sinds | 18 maart 2026 |
| Bouw | |
|---|---|
| Type object | Appartement |
| Bouwjaar | 1995 |
| Soort | Galerijflat |
| Woonlaag | 3 |
| Dak type | Zadeldak |
| Isolatievormen | Dakisolatie, Muurisolatie, Vloerisolatie, Dubbelglas, Volledig geïsoleerd |
| Oppervlaktes en inhoud | |
|---|---|
| Woonoppervlakte | 92 m2 |
| Inhoud | 283 m3 |
| Buitenruimtes gebouwgebonden of vrijstaand | 8 m2 |
| Indeling | |
|---|---|
| Aantal kamers | 3 |
| Aantal slaapkamers | 2 |
| Locatie | |
|---|---|
| Ligging | Aan rustige weg, Buiten bebouwde kom, Aan vaarwater |
| Tuin | |
|---|---|
| Achterom | Nee |
| Energieverbruik | |
|---|---|
| Energielabel | C |
| Uitrusting | |
|---|---|
| Soorten warm water | Elektrische boiler eigendom |
| Parkeer faciliteiten | Op afgesloten terrein |