***FOR ENGLISH SEE BELOW***
Bezichtigingen uitsluitend aanvragen via Funda
Requests for viewings only through Funda
In de geliefde nieuwbouwwijk Vinckebuurt ligt deze stijlvol afgewerkte en energiezuinige hoekwoning (2021) met een zonnige, onder architectuur aangelegde tuin. De woning beschikt over een uitgebouwde woonkamer met extra zijraam, een luxe keuken, vier slaapkamers, een werkkamer en overal op maat gemaakte kasten. Dankzij uitstekende isolatie, HR++ glas, vloerverwarming, twaalf zonnepanelen én een warmtepomp heeft deze woning energielabel A+++!
Begane grond
In de hal bevinden zich de meterkast en het moderne, zwevende toilet met fonteintje. De uitgebouwde woonkamer heeft een extra zijraam en openslaande deuren naar de tuin. Aan de voorzijde ligt de luxe open keuken met een vier elementen brede hoge kastenwand en greeploze laden en fronten. De keuken is voorzien van veel opbergruimte en diverse inbouwapparaten, waaronder een koel-vriescombinatie en een combimagnetron.
Eerste verdieping
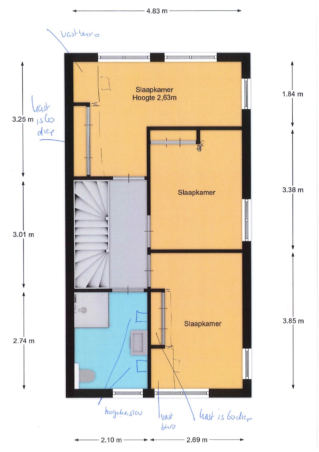
Op deze verdieping bevinden zich drie slaapkamers en een moderne badkamer met daglichttoetreding. De slaapkamer aan de achterzijde heeft ramen in twee gevels, een op maat gemaakte kastenwand en bureau. Eén van de twee andere slaapkamers heeft ook ramen in twee gevels, de derde kamer ligt centraal en heeft één raam. Alle slaapkamers hebben op maat gemaakte kasten. De badkamer is uitgerust met een ruime douchecabine, een wastafelmeubel met extra kasten, een handdoekradiator en een tweede toilet.
Tweede verdieping
De zolderverdieping is ruim en speels door de dwarskap en hoge nok. Aan de achterzijde bevindt zich de masterbedroom met toegang tot een gang met aan weerszijde op kastenwanden. Aan de ene zijde bevindt zich de inbouwgarderobe en aan de andere kant de technische ruimte met onder andere de warmtepomp. Aan de voorzijde van de woning zijn nog een lichte werkplek en een aparte wasruimte gerealiseerd. Onder de schuine kap is op verschillende plaatsen extra bergruimte aanwezig.
Tuin
De onder architectuur aangelegde tuin is heerlijk zonnig vanaf de vroege ochtend tot ver in de avond door de gunstige ligging. Het perceel aan de zijkant van circa 2 meter biedt extra mogelijkheden en is optimaal benut voor een overdekte fietsenstalling, een speelplek met schommel en een afgeschermde plek voor de kliko’s. De tuin is onderhoudsvriendelijk en sfeervol ingericht met beplanting, een zithoek, een eethoek en een houten berging met achterom. De tuin is te bereiken via de achterzijde en beschikt over een tweede entree naar de zijtuin, specifiek bedoeld om fietsen uit het zicht te stallen.
Omgeving
De woning ligt in de populaire nieuwbouwwijk Vinckebuurt, onderdeel van “Allure aan de Amstel”. Dit is een jonge, kindvriendelijke buurt, grenzend aan het oude dorp van Uithoorn. Door de verhoogde ligging biedt de woning vrij uitzicht richting het historische deel van Uithoorn. De halte van sneltram 25 (Amstellijn) ligt op een steenworp afstand en biedt een directe verbinding met Amstelveen en Amsterdam-Zuid. Busverbindingen richting Schiphol zijn eveneens nabij. Via de N201 zijn Haarlem, Utrecht en Amsterdam goed bereikbaar. In de directe omgeving zijn basisscholen, kinderopvang, sportclubs, een speeltuin en een e-harbour. Langs de Amstel kun je wandelen, fietsen of varen, en op korte afstand ligt winkelcentrum Amstelplein.
Bijzonderheden:
• Energielabel A+++
• Warmtepomp
• Vloerverwarming op alle verdiepingen
• Luxe visgraat PVC vloer op alle verdiepingen
• Volledig voorzien van HR++ glas
• Twaalf zonnepanelen op het zuiden
________________________________________
In the popular new residential area of Vinckebuurt, you’ll find this stylish and energy-efficient corner home (2021) with a sunny, professionally landscaped garden. The house features an extended living room with an extra side window, a luxurious kitchen, four bedrooms, a study, and custom-built wardrobes throughout. Thanks to excellent insulation, HR++ glazing, underfloor heating, twelve solar panels, and a heat pump, this home boasts an A+++ energy label!
Ground floor
The entrance hall includes the meter cupboard and a modern, wall-mounted toilet with washbasin. The extended living room features an additional side window and French doors opening to the garden. At the front of the house is the luxurious open-plan kitchen with a full-height wall of cabinetry and handleless drawers and fronts. The kitchen offers ample storage and built-in appliances, including a fridge-freezer and a combination microwave oven.
First floor
This floor offers three bedrooms and a modern bathroom with natural light. The bedroom at the rear features windows on two sides, a built-in wardrobe, and a custom desk. One of the other two bedrooms also has windows on two sides; the third is centrally located with a single window. All bedrooms come with custom-built wardrobes. The bathroom includes a spacious shower cabin, a washbasin unit with additional cabinets, a heated towel rail, and a second toilet.
Second floor
The top floor is spacious and dynamic, thanks to its cross-gabled roof and high ceilings. At the rear is the master bedroom, which leads to a hallway flanked by built-in wardrobes on both sides. On one side is a fitted walk-in wardrobe, and on the other the technical area housing the heat pump. At the front of the house there is a bright study and a laundry area. Additional storage is available under the sloping roof sections.
Garden
The professionally landscaped garden enjoys sunshine from early morning until late evening thanks to its favorable orientation. The approximately 2-metre-wide side plot has been optimally used to accommodate a covered bicycle shelter, a play area with swing, and a screened-off spot for the bins. The garden is attractively designed and low-maintenance, with planting, a seating area, a dining area, and a wooden shed with back entrance. It is accessible from the rear and also has a second entrance via the side garden, specifically designed to store bicycles out of sight.
Surroundings
The house is located in the sought-after Vinckebuurt neighbourhood, part of the “Allure aan de Amstel” development. This is a young, family-friendly area, adjacent to the historic village centre of Uithoorn. Due to the elevated location, the house offers open views towards the older part of town. Tram 25 (Amstellijn) is just around the corner and provides a direct connection to Amstelveen and Amsterdam Zuid. Bus connections to Schiphol are also close by, and major roads such as the N201 offer quick access to Haarlem, Utrecht, and Amsterdam. In the immediate vicinity, you’ll find primary schools, childcare, sports clubs, a playground, and an e-harbour. The nearby Amstel River is perfect for walking, cycling, or boating, and Amstelplein shopping centre is just a short distance away.
Particularities:
• Energy label A+++
• Heat pump
• Underfloor heating on all levels
• Luxury herringbone-patterned PVC flooring on all levels
• Fully equipped with HR++ glazing
• Twelve south-facing solar panels
| Overdracht | |
|---|---|
| Prijs | € 680.000,- k.k. |
| Status | Verkocht |
| Aanvaarding | In overleg |
| Aangeboden sinds | 28 juli 2025 |
| Bouw | |
|---|---|
| Type object | Woonhuis |
| Soort | Eengezinswoning |
| Type | Hoekwoning |
| Bouwjaar | 2021 |
| Dak type | Zadeldak |
| Isolatievormen | Dakisolatie, Muurisolatie, Vloerisolatie, Dubbelglas, Volledig geïsoleerd, HR glas |
| Oppervlaktes en inhoud | |
|---|---|
| Perceel | 149 m2 |
| Woonoppervlakte | 128 m2 |
| Inhoud | 441 m3 |
| Buitenruimtes gebouwgebonden of vrijstaand | 0 m2 |
| Tuinoppervlakte | 84 m2 |
| Indeling | |
|---|---|
| Aantal kamers | 6 |
| Aantal slaapkamers | 4 |
| Tuin | |
|---|---|
| Type | Achtertuin |
| Staat | Aangelegd onder architectuur |
| Ligging | Zuidoost |
| Achterom | Ja |
| Energieverbruik | |
|---|---|
| Energielabel | A+++ |
| Uitrusting | |
|---|---|
| Soorten warm water | Elektrische boiler eigendom |
| Parkeer faciliteiten | Openbaar parkeren |