Sfeervol wonen op een rustige en groene locatie met volop potentie!
Deze leuk gelegen, uitgebouwde tussenwoning biedt een unieke kans voor wie op zoek is naar ruimte, rust én mogelijkheden om de woning geheel naar eigen smaak te moderniseren. Gelegen aan een rustige straat met weinig verkeer, geniet u aan de voorzijde van een fraai uitzicht op sierwater en groenvoorziening – een heerlijke, vrije ligging!
De woning beschikt over een verrassend diepe achtertuin van maar liefst ca. 16 meter, gunstig gelegen op het zuidoosten. Hier kunt u vrijwel de hele dag genieten van de zon – ideaal voor tuinliefhebbers en buitenmensen.
Met een gebruiksoppervlakte wonen van 84 m² én een extra ca. 10 m² aan zolderruimte (niet meegerekend in het woonoppervlak), biedt deze woning volop uitbreidings- en indelingsmogelijkheden.
Als voormalige sociale huurwoning vraagt de woning om modernisering, maar juist dat maakt dit object bijzonder interessant voor handige kopers en doe-het-zelvers die hun eigen woonwensen willen realiseren.
Kortom: een woning met karakter, ruimte en volop potentie op een fijne, rustige locatie!
Het dorp Kockengen
Kockengen valt onder de Gemeente Stichtse Vecht en ligt op 15 respectievelijk 25 autominuten afstand van de steden Utrecht en Amsterdam (A2) midden in het Groene Hart. Het gezellige toeristische Breukelen ligt op circa 5 km afstand en heeft een treinstation. Ook Amersfoort, Rotterdam, Den Bosch, Leiden en Den Haag zijn binnen 50 autominuten te bereiken.
Kockengen heeft een landelijke uitstraling met veel natuur om het dorp heen. Het dorp biedt naast basisonderwijs, ook veel sportfaciliteiten (zoals water-, racket-, wieler- en veldsporten) in en rondom het zwem- en recreatiepark de Koet en het sportcomplex aan de noordzijde van het dorp. Voor voortgezet onderwijs zijn er tal van mogelijkheden in het nabij gelegen Breukelen, Maarssen en Woerden. In Kockengen bevinden zich een supermarkt en diverse detailhandel.
Ligging en bereikbaarheid
De bereikbaarheid van Kockengen is super! Op 15 en respectievelijk 25 autominuten afstand van de steden Utrecht en Amsterdam (A2). Het gezellige Breukelen ligt op circa 5 km afstand en heeft een treinstation (3km). Ook Amersfoort, Rotterdam, Den Bosch, Leiden en Den Haag zijn binnen 50 autominuten bereikbaar. Teven zijn er vanuit Kockengen goede busverbindingen naar Woerden, Utrecht en Amsterdam.
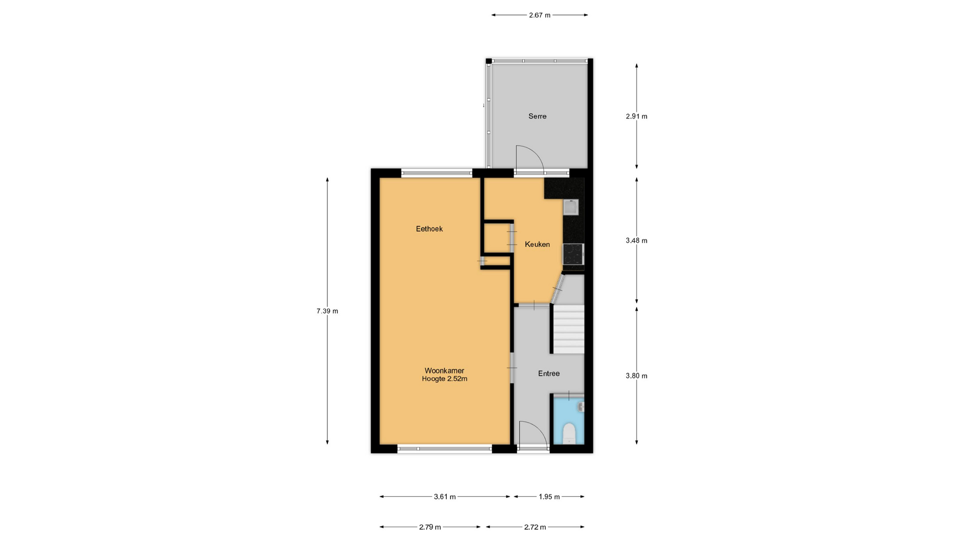
Indeling:
Begane grond:
Entree, hal, toilet met fonteintje en trapopgang. Doorzon woonkamer, dichte keuken voorzien van een eenvoudig keukenblok, een wasmachine aansluiting en kelderkast met groepenkast (3 groepen). De aangebouwde serre achter de keuken biedt extra praktische ruimte en toegang tot de achtertuin.
Eerste verdieping:
Overloop met vaste kast, drie in grootte variërende slaapkamers van respectievelijk ca 11 m², 10 m² en 7 m². De twee grootste slaapkamers hebben een vaste kast. Eenvoudige badkamer met toilet, wastafelmeubel, douche en handdoekenradiator.
Zolder:
De zolder is via een vaste trap toegankelijk. Op de voorzolder bevindt zich de cv-opstelling. De zolderkamer heeft een nokhoogte van 1,97m, is verwarmd en daarmee uitstekend te gebruiken als slaap- en/of werkkamer. Het dak is niet geïsoleerd.
Bijzonderheden:
– Notariële afhandeling geschiedt via notariskantoor Westvaer te Utrecht
– Zelfbewoningsverplichting van toepassing van 3 jaar
– Energielabel D
– Hardhouten kozijnen met HR++ glas op eerste verdieping
– Kindvriendelijke, rustige buurt
– Asbestinventarisatierapport aanwezig
– CV ketel 2024
– Zeer interessant voor starters!
| Overdracht | |
|---|---|
| Prijs | € 419.000,- k.k. |
| Status | Onder bod |
| Aanvaarding | In overleg |
| Aangeboden sinds | 10 april 2026 |
| Bouw | |
|---|---|
| Type object | Woonhuis |
| Soort | Eengezinswoning |
| Type | Tussenwoning |
| Bouwjaar | 1963 |
| Dak type | Zadeldak |
| Isolatievormen | Muurisolatie, Dubbelglas |
| Oppervlaktes en inhoud | |
|---|---|
| Perceel | 184 m2 |
| Woonoppervlakte | 84 m2 |
| Inhoud | 334 m3 |
| Buitenruimtes gebouwgebonden of vrijstaand | 8 m2 |
| Indeling | |
|---|---|
| Aantal kamers | 5 |
| Aantal slaapkamers | 4 |
| Locatie | |
|---|---|
| Ligging | Aan rustige weg, In woonwijk |
| Tuin | |
|---|---|
| Type | Achtertuin |
| Staat | Normaal |
| Ligging | Zuidoost |
| Achterom | Ja |
| Energieverbruik | |
|---|---|
| Energielabel | D |
| Uitrusting | |
|---|---|
| Soorten warm water | CV ketel |
| Parkeer faciliteiten | Openbaar parkeren |