Uniek wonen aan de Vecht!
Direct aan de betoverende rivier De Vecht ligt deze sfeervolle twee-onder-een-kapwoning, type jaren ’50, op maar liefst 1.247 m² eigen grond. Een droomlocatie aan het geliefde zandpad, waar rust, ruimte en natuur samenkomen.
Aan de oostzijde van de Vecht geniet u van het weidse uitzicht over groene weilanden, terwijl u profiteert van een riant perceel met overtuin aan het water, eigen steiger én ligplaats voor uw boot. Binnen enkele minuten wandelt u naar het historische hart van Breukelen met zijn gezellige winkels, restaurants en terrassen.
Deze woning biedt het ultieme buitenleven met de charme van toen en de mogelijkheden van nu. Een plek waar iedere dag voelt als vakantie.
Ligging en bereikbaarheid:
Wonen op één van de mooiste plekjes van de Vechtstreek
Aan het idyllische Zandpad, langs de schilderachtige oostelijke oever van de rivier De Vecht, vindt u deze unieke woning. Een plek met historie: ooit het traject waar trekschuiten reizigers en goederen van Utrecht naar Muiden vervoerden, nu één van de meest geliefde routes van de Stichtse Vecht voor auto, fiets en wandelaar. Omgeven door statige landhuizen, karakteristieke panden en het kabbelende water, ademt deze locatie pure rust en schoonheid.
De woning ligt op slechts enkele minuten fietsen van het gezellige centrum van Breukelen én het NS-station. In Breukelen vindt u alles wat u nodig heeft: scholen (lager, middelbaar en universiteit), winkels, een tropisch zwembad, gezellige terrassen en diverse horecagelegenheden. Watersportliefhebbers komen volop aan hun trekken met talloze mogelijkheden op en langs de Vecht. Ook fietsers genieten hier van prachtige routes langs historische buitenplaatsen, schilderachtige dorpen en sfeervolle horecaplekken.
Met de auto bereikt u Amsterdam in ca. 20 minuten en Utrecht in slechts 15 minuten. Het NS-station biedt bovendien directe verbindingen met Amsterdam, Utrecht en Rotterdam.
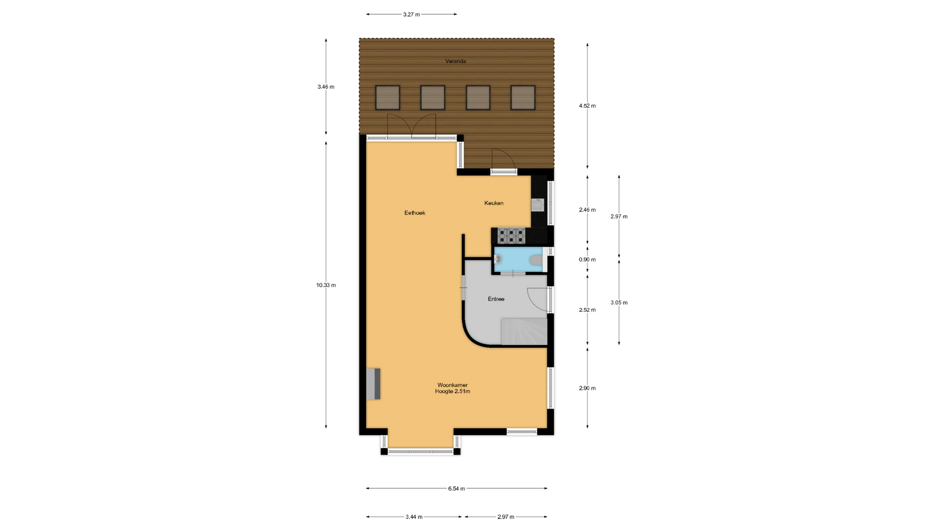
Indeling:
Entree, hal voorzien van toilet met fonteintje en kelderkast. Zeer sfeervolle woonkamer met fraaie houten vloer met brede planken, open haard met schouw, erker aan de voorzijde en openslaande deuren naar veranda aan de achterzijde. Gezellige open keuken voorzien van Boretti fornuis, vaatwasser en vrijstaande Amerikaanse koelkast.
Eerste verdieping:
Overloop, grote slaapkamer met kastenwand en balkon met adembenemend uitzicht over de landerijen. Aan de voorzijde bevinden zich twee slaapkamers, waarvan één met balkon. Badkamer met ligbad, wastafelmeubel met dubbele waskom en inloopdouche en handdoekradiator.
Zolder:
Op deze sfeervolle etage zich de vierde slaapkamer voorzien van een houten vloer, dakkapel, dakvenster en veel praktische bergruimte achter knieschotten.
Garage en schuur:
Ruime vrijstaande stenen garage met aangebouwde stenen berging voorzien van elektra en overkapping te gebruiken voor extra opslag.
Tuin met veranda:
Welkom op een plek waar ruimte en rust samenkomen. De diepe voortuin met brede oprit biedt plaats voor meerdere auto’s, terwijl de overtuin aan de Vechtoever met eigen aanlegsteiger u direct toegang geeft tot het water – ideaal voor uw sloep of zeilboot.
Achter de woning strekt zich een ca. 40 meter diepe tuin uit met een adembenemend vrij uitzicht over de uitgestrekte landerijen. Hier ervaart u iedere dag een ansichtkaartmoment.
De ruime veranda vormt het hart van het buitenleven: de perfecte plek om met vrienden te borrelen, lange zomeravonden door te brengen en eindeloos te genieten van het uitzicht.
| Overdracht | |
|---|---|
| Prijs | € 1.450.000,- k.k. |
| Status | Beschikbaar |
| Aanvaarding | In overleg |
| Aangeboden sinds | 10 september 2025 |
| Bouw | |
|---|---|
| Type object | Woonhuis |
| Soort | Eengezinswoning |
| Type | Twee onder één kapwoning |
| Bouwjaar | 1952 |
| Dak type | Zadeldak |
| Isolatievormen | Dakisolatie, Gedeeltelijk dubbelglas |
| Oppervlaktes en inhoud | |
|---|---|
| Perceel | 1.247 m2 |
| Woonoppervlakte | 127 m2 |
| Inhoud | 439 m3 |
| Buitenruimtes gebouwgebonden of vrijstaand | 35 m2 |
| Indeling | |
|---|---|
| Aantal kamers | 5 |
| Aantal slaapkamers | 4 |
| Locatie | |
|---|---|
| Ligging | Vrij uitzicht, Open ligging, Aan vaarwater, Landelijk gelegen |
| Tuin | |
|---|---|
| Type | Achtertuin |
| Staat | Normaal |
| Ligging | Oost |
| Achterom | Ja |
| Energieverbruik | |
|---|---|
| Energielabel | D |
| Uitrusting | |
|---|---|
| Soorten warm water | CV ketel |
| Parkeer faciliteiten | Op eigen terrein |